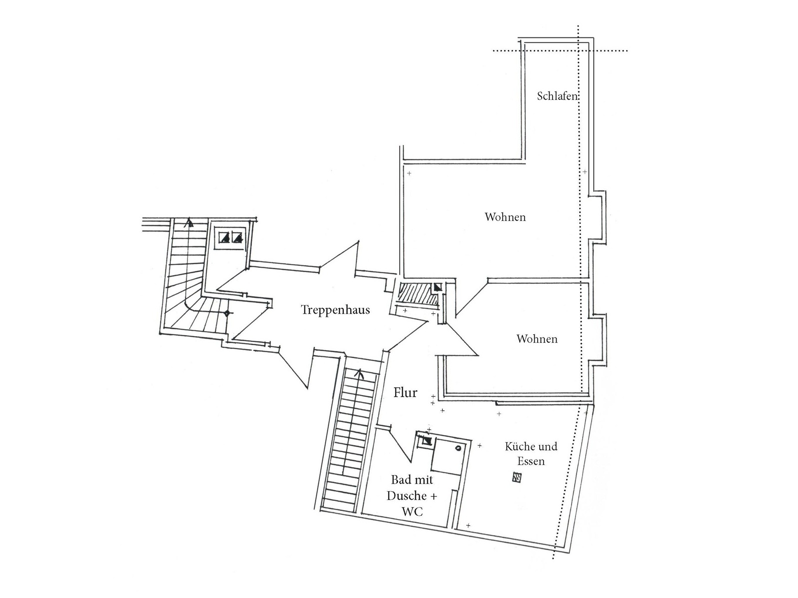
2-Zimmer-Dachwohnung

Helle Dachwohnung mit funktionaler Raumaufteilung und angenehmem Wohncharakter.

Sebastianiplatz 5 - OG 2